März 2026
März 2026
Abo

Exzellenz in nachhaltiger Bauweise und Fassadeninnovation

Gebäudehülle

Mit ihrem neuen Standort setzt die Raiffeisenbank Savosa einen Meilenstein für nachhaltiges Bauen in der Schweiz. Es handelt sich um das erste Verwaltungsgebäude des Kantons, das die Zertifizierung SNBS-Hochbau Gold erhalten hat – die höchste Auszeichnung für Nachhaltigkeit im Bauwesen. Neben diesem prestigeträchtigen Titel erhielt das Gebäude auch die Minergie-ECO-Zertifizierung, was das Engagement für eine innovative, effiziente und umweltfreundliche Architektur unterstreicht.


Login

Danke für Ihr Interesse an unseren Inhalten. Abonnenten der Fachzeitschrift metall finden das Login für den Vollzugriff im Impressum der aktuellen Printausgabe. Das Passwort ändert monatlich.


Jetzt registrieren und lesen. Registrieren Sie sich um einzelne Artikel zu lesen und einfach per Kreditkarte zu bezahlen. (CHF 5,- pro Artikel)
Als registrierter Benutzer haben Sie jederzeit Zugriff auf Ihre gekauften Artikel.

Sollten Sie als interessierte Fachkraft im Metall-, Stahl- und Fassadenbau die Fachzeitschrift metall tatsächlich noch nicht abonniert haben, verlieren Sie keine Zeit und bestellen Sie Ihr persönliches Abonnement gleich hier.

Der Neubau der Raiffeisenbank Savosa hat als erstes Gebäude im Ticino die Zertifizierung SNBS-Hochbau Gold erhalten.
Der Neubau der Raiffeisenbank Savosa hat als erstes Gebäude im Ticino die Zertifizierung SNBS-Hochbau Gold erhalten.

 

Gebäudehülle

Exzellenz in nachhaltiger Bauweise und Fassadeninnovation

Mit ihrem neuen Standort setzt die Raiffeisenbank Savosa einen Meilenstein für nachhaltiges Bauen in der Schweiz. Es handelt sich um das erste Verwaltungsgebäude des Kantons, das die Zertifizierung SNBS-Hochbau Gold erhalten hat – die höchste Auszeichnung für Nachhaltigkeit im Bauwesen. Neben diesem prestigeträchtigen Titel erhielt das Gebäude auch die Minergie-ECO-Zertifizierung, was das Engagement für eine innovative, effiziente und umweltfreundliche Architektur unterstreicht.

Text: Francisco Sampietro, Maturi & Sampietro SA / Mitwirkung: Tatiana Incerti, Maturi & Sampietro SA / Bilder: Maturi & Sampietro SA

 

Struktur und Flexibilität

Das Projekt präsentiert sich als grosszügiger, offener und transparent gestalteter Baukörper aus Glas, der Leichtigkeit vermittelt und sowohl zur Stadt als auch zur umgebenden Landschaft eine klare Beziehung aufbaut.
Der quadratische Grundriss ermöglicht eine allseitige 360°-Ausrichtung zum Dorf Savosa. Getragen wird das Gebäude von acht schräg angeordneten, nach oben hin schmaler werdenden Stützen. Zugleich verengt sich der Baukörper nach unten, was den Eindruck einer dynamischen, nach oben strebenden, Bewegung verstärkt.
Das konstruktive Tragwerk ist bewusst von der inneren Raumstruktur entkoppelt. Dadurch entsteht ein hohes Mass an Flexibilität in der Nutzung. Das Erdgeschoss bildet dabei eine Besonderheit: Es sucht aktiv den Austausch mit seiner Umgebung und schafft durch eine durchlässige Gestaltung einen kontinuierlichen Übergang zwischen Innen- und Aussenraum. Aufgrund seiner räumlichen und funktionalen Anpassungsfähigkeit kann es künftig vielfältige Grundrisse und unterschiedliche Nutzungen aufnehmen.

Die äussere Tragstruktur ist klar von der Gebäudehülle losgelöst.
Die äussere Tragstruktur ist klar von der Gebäudehülle losgelöst.

 

Präzise und detailverliebt gestaltete Gebäudehülle

Eine Schlüsselrolle bei der Erreichung dieser hohen Standards spielte die Maturi & Sampietro SA. Das auf die Planung und Realisierung von Glas- und Metallfassaden spezialisierte Unternehmen übernahm die Planung, Konstruktion und Montage der Gebäudefassade unter strikter Einhaltung der Kriterien für die Zertifizierungen Minergie-ECO und SNBS-Hochbau Gold.
Einer der schwierigsten Aspekte des Projekts war die Einhaltung des modularen Ein-Meter-Rasters, das Schlüsselelement des architektonischen Konzepts. Dieses Prinzip galt nicht nur für die Fassade, sondern auch für die abgehängten Decken. Absolute Präzision bei der Planung und Montage der Bauteile war somit unerlässlich.
Eine besondere Herausforderung für das Team von Maturi & Sampietro bestand darin, das Gebäude schrittweise mit dem Baufortschritt zu vermessen, anstatt auf die Fertigstellung des gesamten Gebäudes zu warten. Dies erforderte eine akribische Überlagerung der sich nach oben verjüngenden Grundrisse der einzelnen Geschosse, um sicherzustellen, dass alle Fenster- und Türelemente die Referenzpunkte und den Ein-Meter-Raster auf jeder Ebene genau einhalten.   

Modularer Raster von einem Meter.
Modularer Raster von einem Meter.

 

Verglaste Pfosten-Riegel-Elemente

Die transparenten, stockwerkbetonenden Glasbänder sind als Pfosten-Riegel-Konstruktion im System Schüco FWS 50.SI mit aussenliegender Press- und Deckleiste gebaut. Dieses System gewährt eine Koppelung der Vertikalprofile aus zwei zusammenfügbaren Halbprofilen.
Für die Tür- resp. Fensterelemente kam Schüco AWS 75.SI zur Anwendung. Die Dreifach-Isolierverglasung weist einen Ug-Wert von 0,5 W/m 2 K auf und einen g-Wert von 55%. Schallschutztechnisch erreicht das Glas - bestehend aus ESG / TVG / VSG – (R’w+Ctr) 36 dB.
Zu Beschattungszwecken sind auf der Aussenseite automatisch angesteuerte Textilmarkisen angebracht. Bei den Fenstertüren gewähren auf der Aussenseite hochtransparente Glasgeländer die erforderliche Sicherheit. Die VSG-Gläser sind seitlich auf die ganze Höhe in einem Klemmprofil stabil eingespannt.  ■

Horizontalschnitt mit Eckdetail.
Horizontalschnitt mit Eckdetail.

 

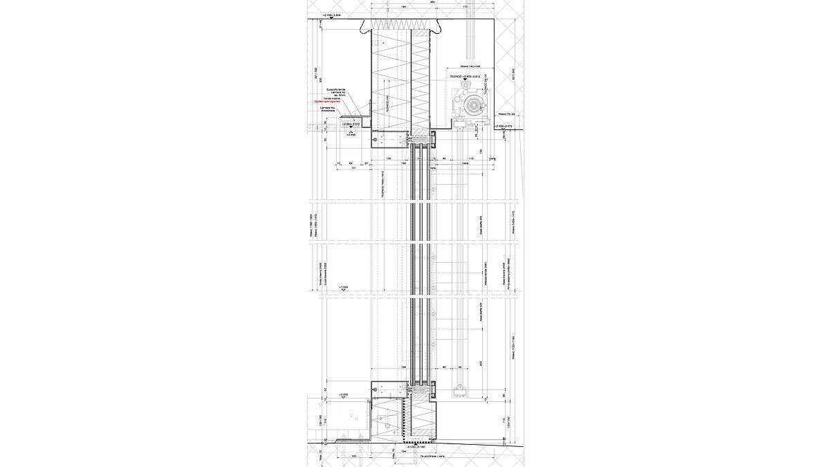
Vertikalschnitt: Eine stabile Textilmarkise gewährt einen selektiven Sonnenschutz.
Vertikalschnitt: Eine stabile Textilmarkise gewährt einen selektiven Sonnenschutz.

 

SNBS-Hochbau Gold und Minergie-ECO: Was bedeuten diese Zertifizierungen?

Die Zertifizierung SNBS-Hochbau Gold («Standard Nachhaltiges Bauen Schweiz») bewertet den gesamten Lebenszyklus eines Gebäudes und basiert auf drei Grundpfeilern:
– Umweltaspekte wie Energieeffizienz, Verwendung von recycelten Materialien und Klimaauswirkungen.
– Wirtschaftliche Aspekte, darunter die Langlebigkeit des Gebäudes und die Optimierung der Betriebskosten. – Soziale Aspekte, die einen hohen Wohnkomfort und eine harmonische Integration in das Stadtbild gewährleisten.
Das Minergie-ECO-Zertifikat hingegen umfasst zusätzliche Kriterien für ein gesundes Innenraumklima, das Wohlbefinden der Nutzerinnen und Nutzer sowie die Verwendung umweltfreundlicher Materialien.

Das architektonische Zusammenspiel des Ein-Meter-Rasters: eine planerische und konstruktive Herausforderung über alle sich nach oben verjüngenden Geschosse.
Das architektonische Zusammenspiel des Ein-Meter-Rasters: eine planerische und konstruktive Herausforderung über alle sich nach oben verjüngenden Geschosse.

 

Bautafel 

Bauherrschaft:

Raiffeisenbank, Savosa

Architekturbüro:

Celoria Architects Sagl, Balerna

Planungsbüro:

Esoprogetti Sagl, Lugano

Fassaden- und Metallbauarbeiten:

Maturi & Sampietro SA, Mezzovico

Bauunternehmung:

Taddei SA, Lugano-Viganello

 

Das Fachregelwerk Metallbauerhandwerk – Konstruktionstechnik enthält im Kap. 2.8 wichtige Informationen zum Thema «Warmfassaden».