November 2025
November 2025
Riesenvitrine Seite Bahnhofstrasse. Allein das mittlere Glas wiegt 1,88 t. Dem Stadtteil würdig sind auch die edlen Ganzglasecken. Bild Redaktion
Riesenvitrine Seite Bahnhofstrasse. Allein das mittlere Glas wiegt 1,88 t. Dem Stadtteil würdig sind auch die edlen Ganzglasecken. Bild Redaktion

 

Fassadenbau / Surber Metallbau AG

Neuer Glanz für die Zürcher Bahnhofstrasse

Mit der Sanierung des Geschäftshauses an der Zürcher Bahnhofstrasse 3 ist ein architektonisches Juwel entstanden, das Historie und Moderne eindrucksvoll verbindet. Das traditionsreiche Gebäude von 1880 wurde unter strengen denkmalpflegerischen Vorgaben vollständig transformiert. Besonders im Fokus: hochwertige Glas-Metall-Elemente der Surber Metallbau AG, die Technik, Ästhetik und Funktionalität auf höchstem Niveau vereinen.

Text Redaktion / Redaktion und Surber Metallbau AG

Die Sanierung des Geschäftshauses an der Zürcher Bahnhofstrasse 3 ist abgeschlossen – und mit ihr erhält das Stück zwischen Paradeplatz und See ein neues architektonisches Highlight. Das historische Gebäude aus dem Jahr 1880, einst Sitz der ersten Schweizer Börse, wurde umfassend umgebaut, erweitert und modernisiert. Verantwortlich für das neue Konzept war das Zürcher Architekturbüro Studio Märkli, das im Auftrag der Genossenschaft zum Baugarten eine behutsame, aber tiefgreifende Transformation realisierte.
Besonderes Augenmerk galt dem Denkmalschutz. Die charakteristische Fassade von 1930 sowie der markante Rundturm an der Westecke mussten erhalten bleiben. Dafür wurde das gesamte Gebäude innerlich ausgehöhlt und um zwei Attikageschosse aufgestockt. Die neue Gebäudehülle vereint modernste Technik mit höchsten ästhetischen Ansprüchen.

 

Edle Glas-Metall-Elemente

Im Erdgeschoss erfüllen über 6 m hohe Edelstahl-/Glasvitrinen mit freiliegenden Ganzglasecken höchste Sicherheits- und Transparenzanforderungen. Drehflügel- und Schiebetüren gewähren einen angenehmen Zugang in das Gebäude. Wer genau hinschaut, erkennt die massiven Granitsteinsäulen, welche die Zwischenböden tragen. Während die Fluchten der Flügeltürelemente raumseitig der Säulen verlaufen, führen die Fluchten der riesigen Vitrinen aussen an den Säulen vorbei. Die Aufstockung glänzt mit einer grossflächigen Glasfassade und textilem Sonnenschutz, während ein Geschoss tiefer Aluminiumfenster den rechteckigen Innenhof bilden. Ein im Innenhof angesiedeltes Satteldach bringt Tageslicht in die unteren Verkaufsetagen. Und – auf dem Rundturm sitzt ein neues, achteckiges Kuppeldach.
Für die Planung, Herstellung und Montage dieser edlen Glas-Metall-Elemente zeichnete die Surber Metallbau AG in Dietikon verantwortlich. So wurde ein denkmalgeschütztes Gebäude architektonisch ins 21. Jahrhundert überführt – stilvoll und zukunftsfähig.     

Vitrine beim Restaurant. Links in der Nische versenkt, die beiden Flügeltüren. Bild Redaktion
Vitrine beim Restaurant. Links in der Nische versenkt, die beiden Flügeltüren. Bild Redaktion

 

Vitrinen im Erdgeschoss

Für das Erdgeschoss plante, fertigte und montierte Surber drei markante Eingangsfronten sowie vier überdimensionale Vitrinen, die als imposante Schaufenster dienen. Diese kastenförmig ausgeführten Glaselemente beeindrucken durch ihre Dimensionen. Mit einer Erkerbreite von 6,30 m, einer Höhe von 6,20 m und einer Bautiefe von 0,50 m erreichen sie mit ihren eleganten Edelstahl-Leibungsverkleidungen eine beeindruckende Gesamtwirkung. Ein besonderes Highlight stellt die hochtransparente Verglasung dar. Charakteristisch sind die schwarz emaillierten Ganzglasecken im unteren Bereich sowie das riesige, mittig platzierte Glasfeld mit einer Fläche von 18,35 m². Dieses Einzelglas bringt ein Gewicht von 1,88 t auf die Waage und demonstriert eindrucksvoll die technische Leistungskraft hinter dem Projekt.
Zum Einsatz kamen 73 mm starke, dreifach verglaste Wärmeschutzgläser in einer Kombination aus ESG und VSG (Weissglas), die hervorragende technische Werte aufweisen: ein Ug-Wert von 0,6 W/m²K, ein g-Wert von 58 % und eine Lt-Wert von 73 %. Im oberen Bereich der Vitrinen sind sowohl front- als auch seitlich angeordnete, nach aussen öffnende Ganzglas-Lüftungsflügel integriert – eine raffinierte Lösung für natürliche Belüftung ohne ästhetische Kompromisse.
Die Dachausbildung wurde mit einem hochwertigen Isolationsaufbau sowie einer Verkleidung aus Edelstahlblech auf der Innen- und Aussenseite umgesetzt. Das Dachwasser wird formschön über ein Edelstahl-Rechteckrohr, das der Vitrinenecke folgt, in den Untergrund geleitet – technisch durchdacht und gestalterisch elegant.

Innenansicht: Die gläserne Vitrine ummantelt die beiden tragenden Granitsäulen. Bild Surber Metallbau AG
Innenansicht: Die gläserne Vitrine ummantelt die beiden tragenden Granitsäulen. Bild Surber Metallbau AG

 

Lasergeschweisste Edelstahlprofile
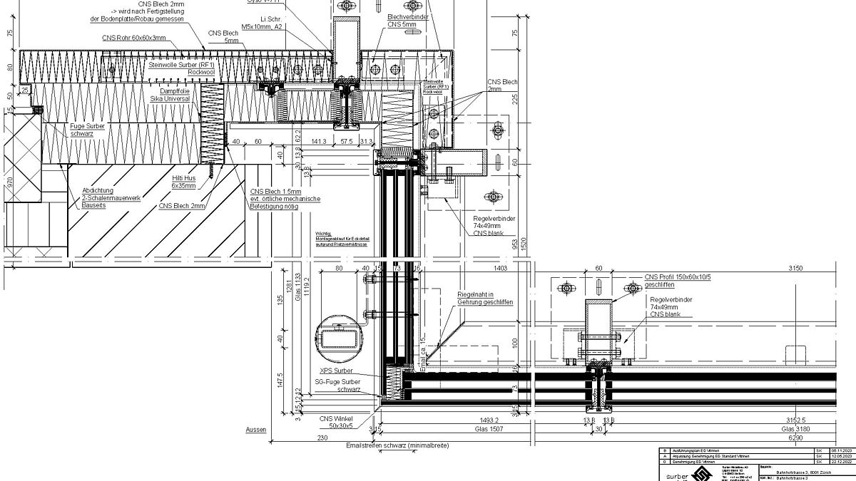
Die gesamte Konstruktion der Riesenvitrinen basiert auf einer filigranen Pfosten-Riegel-Struktur mit einer äusseren Ansichtsbreite von lediglich 56 mm. Zur Anwendung kam das Aufsatzsystem Raico Therm+ S-I 56 in Edelstahl – geprüft nach RC3-Sicherheitsstandard. Eine Besonderheit ist die innere Tragkonstruktion. Sie besteht aus eigens entwickelten, scharfkantig geschliffenen Edelstahl-Sonderprofilen aus dem Hause Surber. Die Pfosten- und Riegelprofile mit Abmessungen von 60 x 150 mm bzw. 60 x 100 mm wurden aus massiven Edelstahlblechen – 10 mm stark im Rücken, 5 mm an den Seiten – zu Kastenprofilen verschweisst und in Längsrichtung mit einem Feinschliff der Körnung 400 veredelt.

Horizontalschnitt Erkerfenster: Die tragenden Edelstahlprofile bestehen aus je vier Blechen und sind lasergeschweisst.
Horizontalschnitt Erkerfenster: Die tragenden Edelstahlprofile bestehen aus je vier Blechen und sind lasergeschweisst.

 

Die Flucht der beiden Einflügeltüren verläuft hinter der Steinsäule. Bild Redaktion
Die Flucht der beiden Einflügeltüren verläuft hinter der Steinsäule. Bild Redaktion

 

Nicht ganz ohne! 
«Diese Elemente stellten uns sowohl technisch als auch logistisch vor grosse Herausforderungen», erklärt Simon Ganz, Geschäftsführer der Surber Metallbau AG, im Gespräch mit der «metall» und fügt an: «Zum einen war die Herstellung der eigens geschweissten Edelstahlprofile sehr speziell, zum anderen verlangte der Umgang mit den fein geschliffenen Edelstahlteilen höchste Sorgfalt – in gewissen Bauphasen gehörten weisse Handschuhe zum Standard.»
Die Montage der bis zu 7 m langen Pfosten und der tonnenschweren Gläser war eine beachtliche Aufgabe für sich. Erschwerend kamen die beengten Platzverhältnisse sowie die stark eingeschränkten Anlieferungsmöglichkeiten an der Bahnhofstrasse hinzu – mitten im laufenden Trambetrieb.
Der zur Verfügung stehende Raum war derart knapp bemessen, dass die Anlieferung der Bauelemente im Just-in-Time-Verfahren erfolgen musste – mit direkter Montage vor Ort. Und das unter einem straffen Zeitplan. «Nur dank der hervorragenden Arbeit unserer qualifizierten Teams – von der Planung über die Projektleitung bis hin zur Produktion und Montage – konnten wir dieses technisch anspruchsvolle und zugleich spannende Projekt erfolgreich realisieren», so Simon Ganz.

Alle Edelstahlprofile sind mit einem Längsschliff mit Korn 400 versehen. Bild Redaktion
Alle Edelstahlprofile sind mit einem Längsschliff mit Korn 400 versehen. Bild Redaktion

 

Flügel- und Schiebetüren

Abwechslung in der Fassadengestaltung bieten drei Drehflügeltüren sowie zwei automatisierte Schiebetüren, die harmonisch in die Pfosten-Riegel-Konstruktionen integriert sind. Wie auch die übrigen Fassadenelemente bestehen sie aus feinstgeschliffenem Edelstahl und erfüllen die Anforderungen an Flucht- und Rettungswege. Für die Drehflügeltüren kam das hochwertige Profilsystem Forster Unico Edelstahl zum Einsatz. Um das Öffnen der massiven Türflügel zu erleichtern, wurden automatische, im Boden eingelassene Öffnungshilfen von Tormax installiert. Für den Antrieb der automatisierten Doppelflügel-Schiebetüren entschieden sich die Architekten für das System Dormakaba FST Pro Green RC 2/3. 

Die Innenhoffassade mit Satteldach. Markant sind auch die olivgrünen Blechverkleidungen der beiden Entrauchungsschächte. Bild Surber Metallbau AG
Die Innenhoffassade mit Satteldach. Markant sind auch die olivgrünen Blechverkleidungen der beiden Entrauchungsschächte. Bild Surber Metallbau AG

 

Innenhofgestaltung mit Metall und Glas

Im geometrischen Herzen des Gebäudes liegt ein beeindruckender, verglaster Innenhof, der sich über vier Geschosse erstreckt und eine Grundfläche von 8,5 x 7,0 m einnimmt. Die raumbildenden vier Regelfassaden bestehen aus einem feingliedrigen Raster geschossweise montierter, thermisch getrennter Aluminiumfenster des Systems Wicona Wicline 75 evo – ausgestattet mit äusseren Absturzsicherungen. Jedes verglaste Element ist als Drehflügel ausgeführt und lässt sich von innen öffnen. Die Fenster führen jeweils vom Boden bis zur Decke, sodass beim Öffnen der Eindruck eines Balkons entsteht. Elegante Flachprofilgeländer aus Aluminium gewährleisten dabei die notwendige Sicherheit. Alle Fenster entsprechen der geprüften Widerstandsklasse RC 3 – ein klares Bekenntnis zu Qualität und Sicherheit.

Das Satteldach durchflutet die Ladenfläche mit Tageslicht. Bild Surber Metallbau 
Das Satteldach durchflutet die Ladenfläche mit Tageslicht. Bild Surber Metallbau 

 

Die Aluminiumoberflächen der Fenster und Geländer sind hochwertig verarbeitet – E4 geschliffen und EV1 anodisiert, was ihnen eine elegante, matte Erscheinung verleiht. Zweiseitig an der rechteckigen Innenhoffassade erheben sich zwei auffällige Entrauchungsschächte, deren Form an die Verkleidung eines Liftturms erinnert. Mit ihren Grundmassen von etwa 2,30 x 1,30 m und der olivgrünen Farbgebung (E6 / Permagreen) setzen sie einen markanten Kontrast zur Glas-Metall-Fassade. Ihre vollständig verblechte Aussenhaut unterstreicht diesen eigenständigen Charakter zusätzlich.
Hierfür baute die Surber Metallbau AG die komplexen Stahlrohrtragwerke sowie die äussere Blechverkleidung. Die innenseitigen Verkleidungen mit Brandschutzplatten wurden bauseits vorgenommen. Die aussenseitigen Verkleidungen bestehen aus mehrfach abgekanteten Aluminiumblechen. Die Eckbleche sind verschraubt, die daran angeschlossenen Flächenbleche an einer speziellen Grundkonstruktion eingehängt.

Oberlicht bringt Licht in den Laden

Im Innenhof errichtete Surber ein verglastes Satteldach, das gleichzeitig als Decke für das darunterliegende Verkaufslokal dient. Die Konstruktion erfüllt die Anforderungen der Brandschutzklasse EI 30 und der Sicherheitsklasse RC 3. Ausgeführt als elegante Pfosten-Riegel-Konstruktion, lässt das Dach reichlich Tageslicht in die Verkaufsfläche strömen und schafft eine helle, einladende Atmosphäre. Die Tragstruktur besteht aus robusten Rechteckstahlrohren, während die gesamte Aussenhaut – inklusive Deckleisten und Verblechungen – aus Aluminium (E4/EV1 gefertigt ist. Auch die Verglasung überzeugt. Sie ist RC3-geprüft und besteht aus hochwertigem, zweifach abgestuftem Wärmeschutzglas des Typs Sunstop Pyrostop EI 30-402.

Die zweigeschossige Aufstockung: Gut zu sehen, der U-förmige Verlauf der Glas-Metall-Fassade. Bild Surber Metallbau AG  
Die zweigeschossige Aufstockung: Gut zu sehen, der U-förmige Verlauf der Glas-Metall-Fassade. Bild Surber Metallbau AG  

 

Ansicht der rückseitigen Aufstockungsfassade. Bild Redaktion.
Ansicht der rückseitigen Aufstockungsfassade. Bild Redaktion.

 

Fassade hoch über Zürich

Wie eingangs erwähnt, wurde das Geschäftshaus aus Gründen der Raumausnutzung um zwei Geschosse aufgestockt. Für diese Erweiterung realisierte die Firma Surber eine dreiseitig umlaufende Edelstahl-Glas-Fassade. Konzipiert als Pfosten-Riegel-Konstruktion aus lasergeschweissten Edelstahl-Kastenprofilen und dem Aufsatzsystem Raico Therm+ S-I 56, wurden insgesamt 36 Einsatzelemente im System Forster Unico verbaut – in geschliffenem Edelstahl, Korn 400.
Besonders auffällig ist der Fassadenverlauf auf der Seite zur Bahnhofstrasse: Die rund 8,8 m langen Fensterelemente sind im Grundriss U-förmig ausgeführt und führen mit einer Tiefe von 1,20 m von der Fassadenflucht gegen das Innere. Daran schliesst sich ein mit Kunststeinplatten verkleideter, muraler Teil an, dem in regelmässigem Rhythmus erneut ein 8,80 m langes Fensterelement folgt. Charakteristisch für diese Fassade ist zudem der Einsatz zahlreicher grossformatiger Verkleidungsbleche, die mit ihrer spiegelnden Oberfläche den Glanz der Fassade markant unterstreichen.

Am höchsten Punkt des Gebäudes aufgesetzt: das achteckige Kuppeldach mit seinen nach aussen öffnenden Klappflügeln. 
Am höchsten Punkt des Gebäudes aufgesetzt: das achteckige Kuppeldach mit seinen nach aussen öffnenden Klappflügeln. 

 

Das Kuppeldach – Surbers jüngster Streich

Am höchsten Punkt des Gebäudes, auf dem markanten Rundturm, thront ein eindrucksvolles, achteckiges Kuppeldach – ein architektonisches Highlight, das nicht nur ästhetisch, sondern auch funktional überzeugt. In die Kuppel integriert sind nach aussen öffnende Klappflügel, die der natürlichen Nachtauskühlung dienen und so für ein angenehmes Raumklima sorgen.
Dieses kleine Meisterwerk mit einem Durchmesser von 4,50 m wurde als komplett vormontiertes Bauelement angeliefert, mit dem Kran präzise an seinen Bestimmungsort gehoben und installiert. Die Kuppel selbst ist in Edelstahl ausgeführt, als Pfosten-Riegel-Konstruktion gefertigt und besticht durch ihre hochwertige Verarbeitung. Besonders raffiniert sind die vertikalen Glasecken. Sie bestehen aus Stufengläsern, die elegant mit einer strukturellen Glasverklebung (SG-Verklebung) verbunden wurden und damit eine durchgehende, rahmenlose Glasoptik ermöglichen.
Das Dach der Kuppel ist mit einem durchdachten Aufbau aus Dämmung und Platten versehen und wurde auf der Aussenseite mit Feinblech vom Spengler verkleidet. Ein gestalterisches Detail setzt auch die Untersicht: Sie besteht aus Edelstahlblechen, die sich strahlenförmig von der Mitte aus entfalten und dem Ganzen eine besonders edle Anmutung verleihen.
Ein Video von der Montage finden Sie: Hier    ■   

 

Untersicht Kuppeldach: Die Verkleidungsbleche aus Edelstahl breiten sich vom Zentrum her strahlenförmig aus. Die denkmalgeschützte Unterkonstruktion mit ihren vernieteten Blechen blieb bestehen. Bild Surber Metallbau AG
Untersicht Kuppeldach: Die Verkleidungsbleche aus Edelstahl breiten sich vom Zentrum her strahlenförmig aus. Die denkmalgeschützte Unterkonstruktion mit ihren vernieteten Blechen blieb bestehen. Bild Surber Metallbau AG

 

Bautafel 

Bauherr:

Genossenschaft zum Baugarten, Zürich

Bauleitung:

HSSP AG, Zürich

Architekt:

Studio Märkli, Zürich

Fassadenprojekt:

EBP Schweiz AG

Fassadenbau:

Surber Metallbau AG, Dietikon

 

Das Fachregelwerk Metallbauerhandwerk – Konstruktionstechnik enthält im Kap. 2.1 wichtige Informationen zum Thema «Fenster und im Kap. 2.3.1 wichtige Informationen zum Thema «Metalltüren».».