novembre 2025
novembre 2025
Vitrine géante côté Bahnhofstrasse. Le verre du milieu pèse à lui seul 1,88 t et les angles tout verre s’intègrent parfaitement dans le quartier. Photo : rédaction
Vitrine géante côté Bahnhofstrasse. Le verre du milieu pèse à lui seul 1,88 t et les angles tout verre s’intègrent parfaitement dans le quartier. Photo : rédaction

 

Construction de façades / Surber Metallbau AG

Un nouvel éclat pour la Bahnhofstrasse de Zurich

La rénovation de l’immeuble commercial de la Bahnhofstrasse 3 à Zurich a donné naissance à un joyau architectural alliant histoire et modernité. Ce bâtiment de tradition de 1880 a été entièrement transformé en respectant des directives strictes de protection des monuments historiques. En point de mire, les éléments verre-métal haut de gamme de Surber Metallbau AG, qui allient technique, esthétique et fonctionnalité au plus haut niveau.

Texte : rédaction / rédaction et Surber Metallbau AG

La rénovation de l’immeuble commercial de la Bahnhofstrasse 3 à Zurich est terminée, et avec elle, c’est un élément architectural particulier qui ressort désormais entre la Paradeplatz et le lac. Autrefois siège de la première Bourse suisse, ce bâtiment historique de 1880 a été entièrement transformé, agrandi et modernisé. À l’origine du concept, le bureau d’architectes zurichois Studio Märkli a réalisé une transformation délicate, mais en profondeur, pour la coopérative zum Baugarten.
Une attention particulière a été accordée à la protection des monuments historiques. Il a ainsi fallu conserver la façade de 1930 et l’imposante tour ronde de l’angle ouest. Le bâtiment a par conséquent été vidé et surélevé de deux étages en attique. Sa nouvelle enveloppe allie technologie de pointe et exigences esthétiques très élevées.

 

Des éléments verre-métal élégants

Au rez-de-chaussée, des vitrines en acier inoxydable et en verre de plus de 6 m de haut avec des angles tout verre répondent aux exigences les plus élevées de sécurité et de transparence. Des portes pivotantes et coulissantes assurent un accès aisé au bâtiment. Des colonnes de granit massives soutiennent les planchers intermédiaires. Les éléments de portes battantes sont alignés à l’intérieur des colonnes, et les immenses vitrines à l’extérieur des colonnes. La surélévation se distingue avec une grande façade en verre et une protection solaire textile, tandis qu’un étage de fenêtres profondes en aluminium abrite une cour intérieure rectangulaire. Dans cette dernière, un toit à deux pans permet à la lumière du jour de pénétrer aux étages de vente inférieurs. Et la tour ronde est dotée d’une nouvelle coupole octogonale.
La planification, la fabrication et le montage de ces éléments en verre-métal ont été confiés à Surber Metallbau AG à Dietikon. Ainsi, un bâtiment classé monument historique a été adapté à l’architecture du XXIe siècle dans un style à l’épreuve du temps.

Vitrine près du restaurant. Les deux portes battantes sont encastrées dans la niche à gauche. Photo : rédaction
Vitrine près du restaurant. Les deux portes battantes sont encastrées dans la niche à gauche. Photo : rédaction

 

Vitrines au rez-de-chaussée

Au rez-de-chaussée, Surber a conçu, fabriqué et monté trois façades d’entrée ainsi que quatre vitres surdimensionnées qui servent d’imposantes vitrines. Ces éléments en verre en forme de caisson impressionnent par leurs dimensions. Avec une largeur d’encorbellement de 6,30 m, une hauteur de 6,20 m et une profondeur de construction de 0,50 m, ils produisent un effet global impressionnant grâce à leurs élégants habillages d’embrasures en acier inoxydable. Le vitrage hautement transparent constitue ici une particularité intéressante. L’élément est caractérisé par ses angles tout verre émaillés noirs dans la partie inférieure et son immense panneau en verre placé au centre d’une surface de 18,35 m². Ce verre unique de 1,88 t démontre de manière impressionnante la puissance technique que requérait le projet.
Ce dernier a nécessité des triples vitrages à isolation thermique de 73 mm d’épaisseur combinant verre de sécurité trempé et verre feuilleté de sécurité (verre blanc), qui présentent d’excellentes valeurs techniques : un coefficient Ug de 0,6 W/m²K, un facteur solaire g de 58 % et une valeur TL de 73 %. Dans la partie supérieure des vitrines, des vantaux d’aération tout verre s’ouvrant vers l’extérieur sont intégrés à la fois à l’avant et sur les côtés : une solution raffinée pour une aération naturelle sans compromis esthétique.
La toiture a été réalisée avec une structure d’isolation de haute qualité ainsi qu’un revêtement en tôle d’acier inoxydable à l’intérieur et à l’extérieur. L’eau de toiture est acheminée dans le sous-sol via un tube rectangulaire en acier inoxydable qui suit le coin de la vitrine : une solution bien pensée sur les plans technique et esthétique.

Vue de l’intérieur : la vitrine enveloppe les deux colonnes porteuses en granit. Photo : Surber Metallbau AG
Vue de l’intérieur : la vitrine enveloppe les deux colonnes porteuses en granit. Photo : Surber Metallbau AG

 

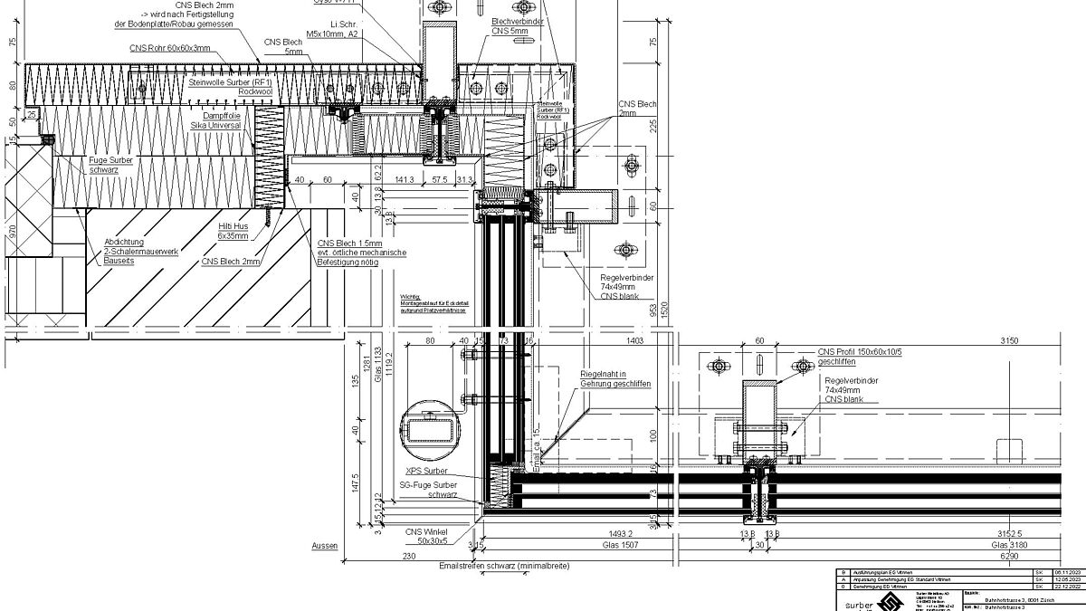
Profilés inox soudés au laser
L’ensemble de la construction des vitrines géantes repose sur une structure montants-traverses filigrane d’une largeur face vue extérieure de seulement 56 mm, réalisée avec le système Raico Therm+ S-I 56 en acier inoxydable, certifié selon la norme de sécurité RC3. La structure porteuse interne constitue une particularité. Elle se compose de profilés spéciaux en acier inoxydable rectifiés à arêtes vives et spécialement développés par la maison Surber. Les profilés de montants et de traverses de 60 x 150 mm et 60 x 100 mm ont été soudés en tôles d’acier inoxydable massives (10 mm d’épaisseur à l’arrière et 5 mm sur les côtés) pour former des profilés en caisson et mettre en évidence l’aspect longitudinal avec un ponçage fin de grain 400.

Coupe horizontale oriel : chaque profilé porteur en acier inoxydable est composé de quatre tôles et soudé au laser à la main.
Coupe horizontale oriel : chaque profilé porteur en acier inoxydable est composé de quatre tôles et soudé au laser à la main.

 

L’alignement des deux portes à un vantail passe derrière la colonne de pierre. Photo : rédaction
L’alignement des deux portes à un vantail passe derrière la colonne de pierre. Photo : rédaction

 

Une tâche pas si aisée !
« Ces éléments nous ont posé de grands défis techniques et logistiques », explique Simon Ganz, directeur de Surber Metallbau AG, dans un entretien avec « metall ». Et d’ajouter: « D’une part, la fabrication des profilés en acier inoxydable soudés par nos soins était très particulière. D’autre part, le maniement des pièces en acier inoxydable finement polies exigeait le plus grand soin : il a ainsi été normal de porter des gants blancs durant certaines phases de construction. »
Le montage des montants pouvant atteindre 7 m de long et des vitrages de plusieurs tonnes a été une tâche considérable. Le manque de place et les possibilités de livraison très limitées à la Bahnhofstrasse, alors que le tram était en service, ont rendu la situation encore plus complexe.
L’espace disponible était si restreint qu’il a fallu livrer les éléments de construction en flux tendu, avec un montage direct sur place. Et en plus avec un calendrier serré. « Ce n’est que grâce à l’excellent travail de nos équipes qualifiées de planification, production, montage et direction de projet que nous avons pu mener ce projet passionnant et exigeant sur le plan technique à bien », explique Simon Ganz.

Tous les profilés en acier inoxydable sont pourvus d’un biseau longitudinal de grain 400. Photo : rédaction
Tous les profilés en acier inoxydable sont pourvus d’un biseau longitudinal de grain 400. Photo : rédaction

 

Portes battantes et coulissantes

Trois portes pivotantes et deux portes coulissantes automatisées, harmonieusement intégrées aux constructions montants-traverses, permettent de varier l’aspect des façades. Comme les autres éléments de façade, elles sont réalisées en acier inoxydable finement poli et répondent aux exigences des voies d’évacuation et de sauvetage. Le système de profilés haut de gamme en acier inoxydable Forster Unico a été utilisé pour les portes pivotantes. Des aides à l’ouverture automatiques de Tormax ont été encastrées dans le sol pour faciliter l’ouverture des vantaux massifs. Les architectes ont opté pour le système Dormakaba FST Pro Green RC 2/3 pour l’entraînement des portes coulissantes automatisées à deux vantaux.

La façade de la cour intérieure avec toit à deux pans. Les revêtements en tôle vert olive des deux puits d’évacuation des fumées sont bien visibles. Photo : Surber Metallbau AG
La façade de la cour intérieure avec toit à deux pans. Les revêtements en tôle vert olive des deux puits d’évacuation des fumées sont bien visibles. Photo : Surber Metallbau AG

 

Aménagement de cour intérieure en métal et en verre

Au cœur géométrique du bâtiment se trouve une impressionnante cour intérieure vitrée, qui s’étend sur quatre étages et une surface de 8,5 x 7,0 m. Les quatre façades délimitant l’espace se composent d’une fine trame de fenêtres en aluminium à rupture thermique du système Wicona Wicline 75 evo montées étage par étage (avec protections antichute extérieures). Chaque élément vitré est réalisé avec un battant à ouverture depuis l’intérieur. Les fenêtres s’étendent du sol au plafond et se transforment presque en balcon lorsqu’elles sont ouvertes. D’élégants garde-corps à profil plat en aluminium garantissent la sécurité nécessaire. Toutes les fenêtres répondent à la classe de résistance certifiée RC 3 : un engagement clair en faveur de la qualité et de la sécurité.

Le toit à deux pans inonde la surface commerciale de lumière naturelle. Photo : Surber Metallbau   
Le toit à deux pans inonde la surface commerciale de lumière naturelle. Photo : Surber Metallbau   

 

Les surfaces en aluminium des fenêtres et des garde-corps sont polies E4 et anodisées EV1, et présentent ainsi un aspect mat et élégant. Sur deux côtés de la façade rectangulaire de la cour intérieure se détachent deux regards d’évacuation des fumées dont la forme rappelle l’habillage d’une tour d’ascenseur. Avec leurs dimensions de base d’environ 2,30 x 1,30 m et leur teinte vert olive (E6/Permagreen), ils créent un contraste saisissant avec la façade verre-métal. Leur enveloppe extérieure en tôle vient souligner ce caractère unique.
Surber Metallbau AG a ici réalisé la structure porteuse complexe en tubes d’acier ainsi que l’habillage extérieur en tôle. Les revêtements intérieurs avec des panneaux coupe-feu ont été réalisés par le client. Les habillages extérieurs sont constitués de tôles d’aluminium plusieurs fois biseautées. Les tôles d’angle sont vissées, et les tôles planes y sont accrochées à une structure de base spéciale.

Un vitrage supérieur pour éclairer le magasin

Dans la cour intérieure, Surber a érigé un toit vitré à deux pans qui sert en même temps de plafond au local de vente situé en dessous. La construction répond aux exigences de la classe de protection incendie EI 30 et de la classe de sécurité RC 3. Réalisé sous la forme d’une élégante construction montants-traverses, le toit laisse pénétrer suffisamment de lumière naturelle dans la surface de vente et crée ainsi une atmosphère lumineuse et accueillante. La structure porteuse est composée de solides tubes d’acier rectangulaires, tandis que l’ensemble de l’enveloppe extérieure, y compris les profilés de recouvrement et les tôles, est en aluminium (E4/EV1). Le vitrage est également convaincant. Certifié RC3, il est composé d’un verre à isolation thermique de grande qualité à double couche de type Sunstop Pyrostop EI 30-402.

Surélévation de deux étages : le tracé en U de la façade en verre et en métal est bien visible. Photo : Surber Metallbau AG
Surélévation de deux étages : le tracé en U de la façade en verre et en métal est bien visible. Photo : Surber Metallbau AG

 

Vue de la façade surélevée à l’arrière. Photo : rédaction Supprimer dans l’imprimé !
Vue de la façade surélevée à l’arrière. Photo : rédaction Supprimer dans l’imprimé !

 

Une façade surplombant Zurich

Comme déjà mentionné, l’immeuble commercial a été surélevé de deux étages pour des raisons d’utilisation de l’espace. L’entreprise Surber a réalisé pour cette extension une façade en verre et acier inoxydable sur trois côtés. Conçus sous la forme d’une construction montants-traverses à partir de profilés en caissons en acier inoxydable soudés au laser et du système de pose Raico Therm+ S-I 56, 36 éléments intercalaires au total ont été montés dans le système Forster Unico (en acier inoxydable poli, grain 400).
Le tracé de la façade du côté de la Bahnhofstrasse est particulièrement frappant : les éléments de fenêtre d’environ 8,8 m de long en forme de U s’étendent à une profondeur de 1,20 m vers l’intérieur depuis l’alignement de la façade. Vient ensuite une partie murale habillée de dalles en pierre artificielle, suivie à intervalles réguliers d’un élément de fenêtre de 8,80 m de long. Cette façade est également caractérisée par l’utilisation de nombreuses tôles d’habillage de grand format dont la surface réfléchissante souligne son éclat.

Posée au point le plus haut du bâtiment, la coupole octogonale présente des vantaux pliants s’ouvrant vers l’extérieur.
Posée au point le plus haut du bâtiment, la coupole octogonale présente des vantaux pliants s’ouvrant vers l’extérieur.

 

La coupole, le dernier coup de Surber

Au point culminant du bâtiment, sur l’imposante tour circulaire, trône une impressionnante coupole octogonale : cet élément architectural séduit non seulement par son esthétique, mais aussi par sa fonctionnalité. La coupole intègre des vantaux pliants s’ouvrant vers l’extérieur qui assurent un refroidissement naturel pendant la nuit et ainsi un climat intérieur agréable.
Ce petit chef-d’œuvre d’un diamètre de 4,50 m a été livré sous forme d’élément de construction entièrement prémonté, soulevé et installé avec précision à l’aide d’une grue. La coupole elle-même est réalisée en acier inoxydable avec une structure montants-traverses et séduit par sa finition haut de gamme. Les angles verticaux en verre sont particulièrement raffinés. Ils sont composés de verres décalés, élégamment assemblés par un collage structurel du verre (collage SG) et permettent ainsi d’obtenir un aspect continu sans cadre.
Le toit de la coupole est doté d’une structure astucieuse avec isolation et plaques. Il a été habillé à l’extérieur de tôle fine réalisée par le ferblantier. La sous-face comporte aussi un détail conceptuel : elle est composée de tôles d’acier inoxydable qui se déploient sous forme de rayons depuis le centre et confèrent à l’ensemble un aspect particulièrement noble.
Vous trouverez une vidéo du montage : ici    ■   

 

Sous-face de la coupole : les tôles d’habillage en acier inoxydable s’étendent sous forme de rayons depuis le centre. La structure porteuse classée monument historique avec ses tôles rivetées a été conservée. Photo : Surber Metallbau AG 
Sous-face de la coupole : les tôles d’habillage en acier inoxydable s’étendent sous forme de rayons depuis le centre. La structure porteuse classée monument historique avec ses tôles rivetées a été conservée. Photo : Surber Metallbau AG 

 

Panneau de chantier

Maître d’ouvrage :

Genossenschaft zum Baugarten, Zurich

Direction des travaux :

HSSP AG, Zurich

Architecte :

Studio Märkli, Zurich

Projet de façades :

EBP Schweiz AG

Construction de façades :

Surber Metallbau AG, Dietikon