mars 2026
mars 2026
Abo

Excellence dans la construction durable et l’innovation en matière de façades

Enveloppe de bâtiment

Avec son nouveau site, la Banque Raiffeisen de Savosa pose un jalon dans la construction durable en Suisse. Il s’agit du premier bâtiment administratif du canton à obtenir la certification SNBS-Bâtiment Or, la plus haute distinction en matière de durabilité dans le secteur de la construction. En plus de ce titre prestigieux, le bâtiment a également obtenu la certification Minergie-ECO, soulignant l’engagement en faveur d’une architecture innovante, efficiente et respectueuse de l’environnement.


Connexion

Merci de l’intérêt que vous portez à nos contenus. Les abonnés de la revue spécialisée metall trouveront le Login pour l’accès intégral dans les informations légales de la version imprimée actuelle. Le mot de passe change tous les mois.


Inscrivez-vous maintenant pour lire cet article. Inscrivez-vous pour lire les différents articles et payez très facilement par carte de crédit. (CHF 5.- par article)
En tant qu’utilisateur enregistré, vous pouvez accéder à tout moment à l’article acheté.

Si - en tant que professionnel dans les domaines de la construction métallique, en acier et de façades - vous n’êtes pas encore abonné à la revue spécialisée metall, ne perdez plus une seconde et souscrivez dès à présent votre abonnement ici.

Le nouveau bâtiment de la Banque Raiffeisen à Savosa est le premier bâtiment tessinois à obtenir la certification SNBS-Bâtiment Or.
Le nouveau bâtiment de la Banque Raiffeisen à Savosa est le premier bâtiment tessinois à obtenir la certification SNBS-Bâtiment Or.

 

Enveloppe de bâtiment

Excellence dans la construction durable et l’innovation en matière de façades

Avec son nouveau site, la Banque Raiffeisen de Savosa pose un jalon dans la construction durable en Suisse. Il s’agit du premier bâtiment administratif du canton à obtenir la certification SNBS-Bâtiment Or, la plus haute distinction en matière de durabilité dans le secteur de la construction. En plus de ce titre prestigieux, le bâtiment a également obtenu la certification Minergie-ECO, soulignant l’engagement en faveur d’une architecture innovante, efficiente et respectueuse de l’environnement.

Texte : Francisco Sampietro, Maturi & Sampietro SA / Participation de: Tatiana Incerti, Maturi & Sampietro SA / photos : Maturi & Sampietro SA
   

 

Structure et flexibilité

(Bloc de texte rédaction) Le projet prend la forme d’un vaste corps de bâtiment en verre, ouvert et transparent, qui dégage de la légèreté et établit un lien clair avec la ville et le paysage environnant.
Le plan carré permet une orientation à 360° sur tous les côtés du village de Savosa. Le bâtiment repose sur huit piliers disposés de biais qui s’affinent vers le haut. Dans le même temps, le corps du bâtiment se resserre vers le haut, ce qui renforce l’impression d’un mouvement dynamique dirigé vers le haut.
La structure porteuse constructive est sciemment dissociée de la structure intérieure. Il en résulte une grande flexibilité d’utilisation. Le rez-de-chaussée présente une particularité : il recherche un échange actif avec son environnement et crée une transition continue entre l’intérieur et l’extérieur grâce à une conception perméable. Grâce à sa capacité d’adaptation spatiale et fonctionnelle, il pourra servir à l’avenir à différents usages, avec de multiples agencements.

La structure porteuse extérieure est clairement détachée de l’enveloppe du bâtiment.
La structure porteuse extérieure est clairement détachée de l’enveloppe du bâtiment.

 

Une enveloppe du bâtiment conçue avec précision et détail

Maturi & Sampietro SA a joué un rôle clé pour satisfaire à ces standards élevés. L’entreprise spécialisée dans la conception et la réalisation de façades vitrées et métalliques a pris en charge la conception, la production et le montage de la façade du bâtiment dans le strict respect des critères de certification Minergie-ECO et SNBS-Bâtiment Or.
L’un des aspects les plus difficiles du projet a été le respect de la trame modulaire d’un mètre, élément clé du concept architectural. Ce principe s’appliquait non seulement à la façade, mais aussi aux plafonds suspendus. Une précision absolue était donc indispensable, à la planification comme au montage.
Un défi particulier rencontrées par l’équipe de Maturi & Sampietro a été de mesurer le bâtiment progressivement au fur et à mesure de l’avancement des travaux, au lieu d’attendre l’achèvement de l’ensemble du bâtiment. Cela a nécessité une superposition méticuleuse des plans avec un affinement vers le haut des différents étages afin de garantir que tous les éléments de fenêtres et de portes respectent précisément les points de référence et la trame d’un mètre à chaque niveau.

Trame modulaire d’1 mètre.
Trame modulaire d’1 mètre.

 

Éléments poteaux-traverses vitrés

Les bandes de verre transparentes sur plusieurs étages ont été réalisées en poteaux-traverses avec le système Schüco FWS 50.SI avec baguette extérieure de serrage et de recouvrement. Ce système garantit un couplage des profilés verticaux à partir de deux demi-profilés assemblables.
Pour les éléments de portes et de fenêtre, les concepteurs ont choisi Schüco AWS 75.SIs. Le triple vitrage isolant présente un coefficient Ug de 0,5 W/m2 K et une valeur g de 55 %. Du point de vue de la technique d’isolation acoustique, le vitrage composé de verre VST/VPP/VFS atteint 36 dB (R`w+Ctr).
Des stores en textile à commande automatique sont installés à l’extérieur pour assurer l’ombrage. Sur les portes-fenêtres, des balustrades en verre haute transparence assurent la sécurité. Les vitrages VFS sont solidement fixés sur le côté, sur toute la hauteur dans un profil de serrage. ■

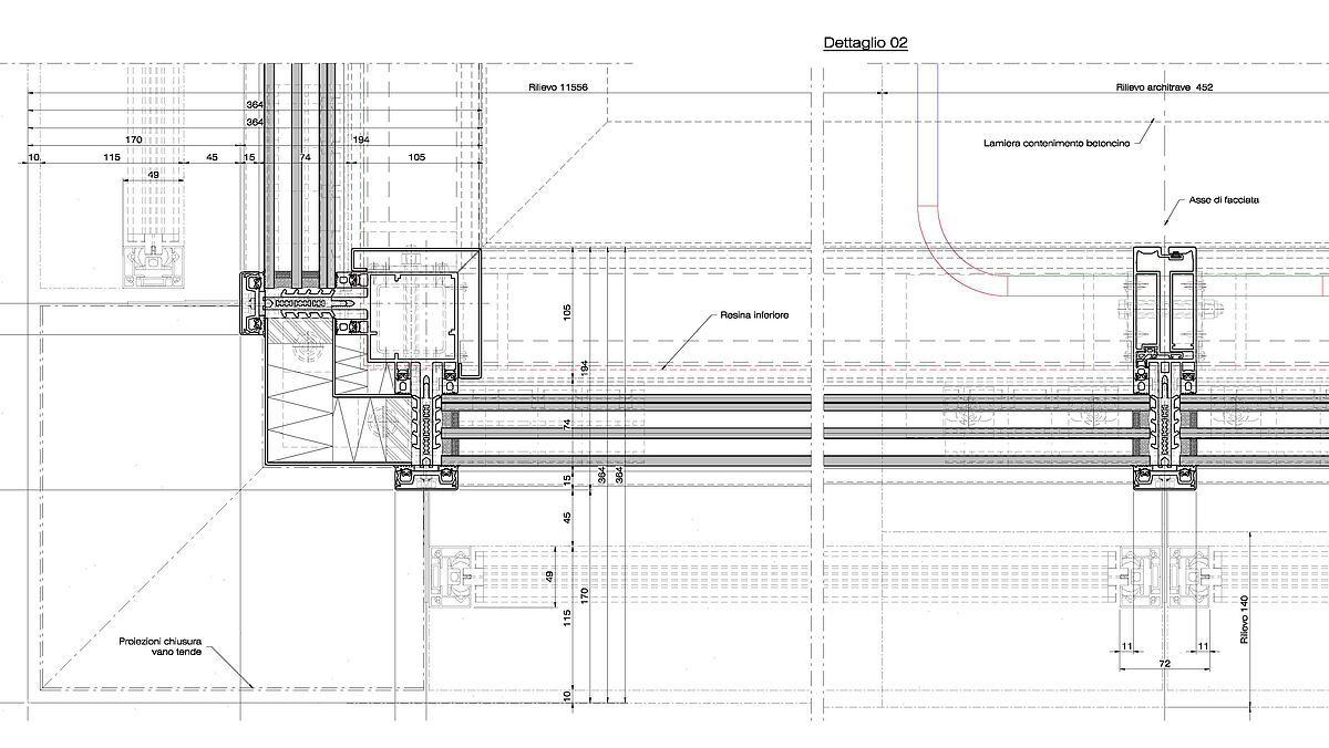
Coupe horizontale avec détail d’angle.
Coupe horizontale avec détail d’angle.

 

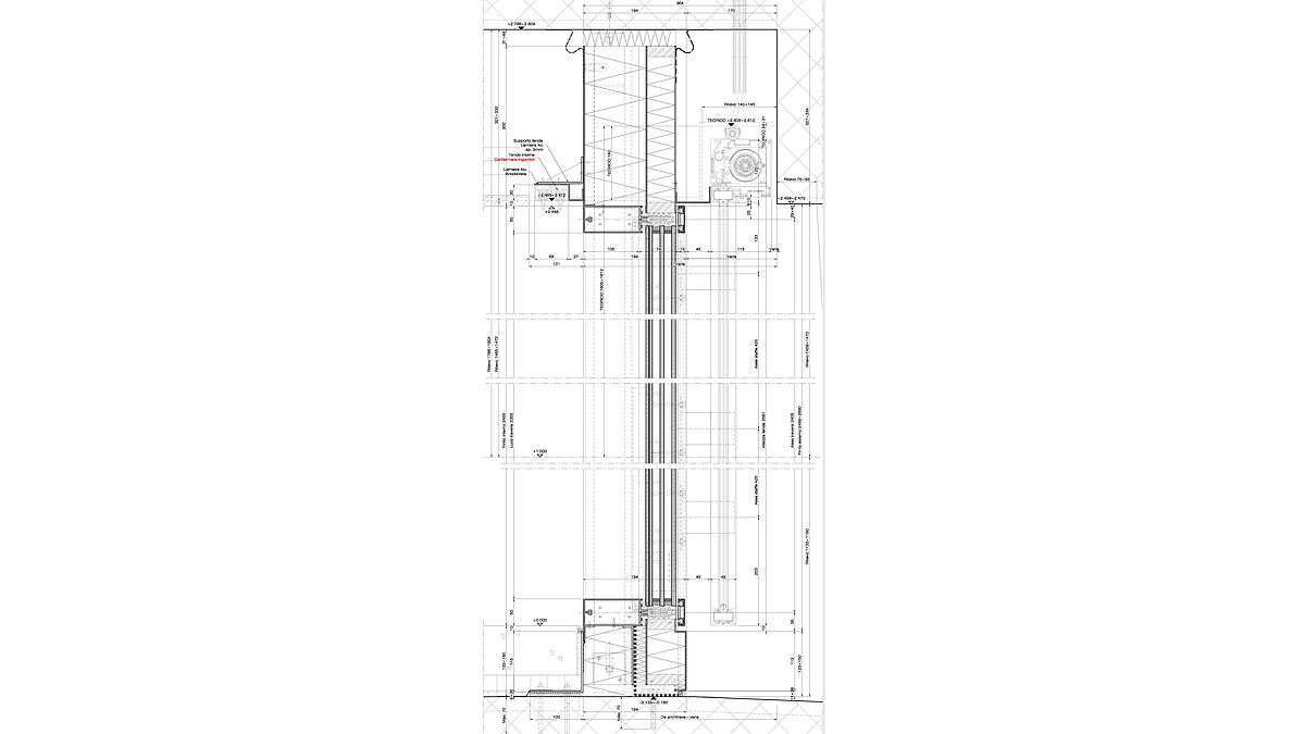
Coupe verticale : un store en textile stable garantit une protection solaire sélective.
Coupe verticale : un store en textile stable garantit une protection solaire sélective.

 

SNBS-Bâtiment Or et Minergie-ECO : que signifient ces certifications ?

La certification SNBS-Bâtiment Or (« Standard de Construction Durable Suisse ») évalue l’ensemble du cycle de vie d’un bâtiment et repose sur trois piliers fondamentaux :
- aspects environnementaux tels que l’efficacité énergétique, l’utilisation de matériaux recyclés et l’impact climatique ;
– aspects économiques, dont la longévité du bâtiment et l’optimisation des coûts d’exploitation ; – aspects sociaux qui garantissent un confort d’habitation élevé et une intégration harmonieuse dans le paysage urbain.
Le certificat Minergie-ECO, quant à lui, comprend des critères supplémentaires pour un climat intérieur sain, le bien-être des utilisatrices et utilisateurs ainsi que l’utilisation de matériaux respectueux de l’environnement.

L’interaction architecturale de la trame d’un mètre : un défi de planification et de construction pour tous les étages qui s’affinent vers le haut.
L’interaction architecturale de la trame d’un mètre : un défi de planification et de construction pour tous les étages qui s’affinent vers le haut.

 

Panneau de chantier

Maître d’ouvrage :
Banque Raiffeisen, Savosa

Bureau d’architectes :
Celoria Architects Sagl, Balerna

Bureau d’études :
Esoprogetti Sagl, Lugano

Travaux de façades et de construction métallique :
Maturi & Sampietro SA, Mezzovico

Entreprise de construction :
Taddei SA, Lugano-Viganello